Newtown 158

Newtown Range

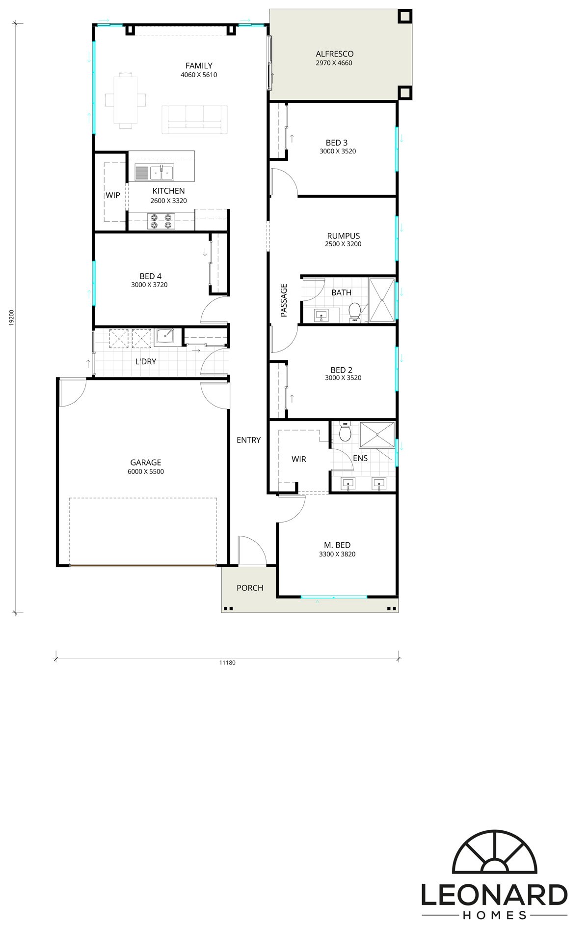
The NEWTOWN 158 has been designed for privacy in mind with the master bedroom at the rear of the home. Featuring a modern kitchen with a walk-in pantry and open plan living and dining. Designed to suit narrow lots. 

Key Features:

  • Design width is 7.80m 
  • Three bedrooms with a separate study/living area 
  • Central kitchen with open plan living and dining 
  • Feature Hamptons cladding with stone pillars

Contact our new home team today for a quote.

More Designs

Heathwood 206

Oxenford 227

Ripley 190

Set your Location

Download your home inclusion now