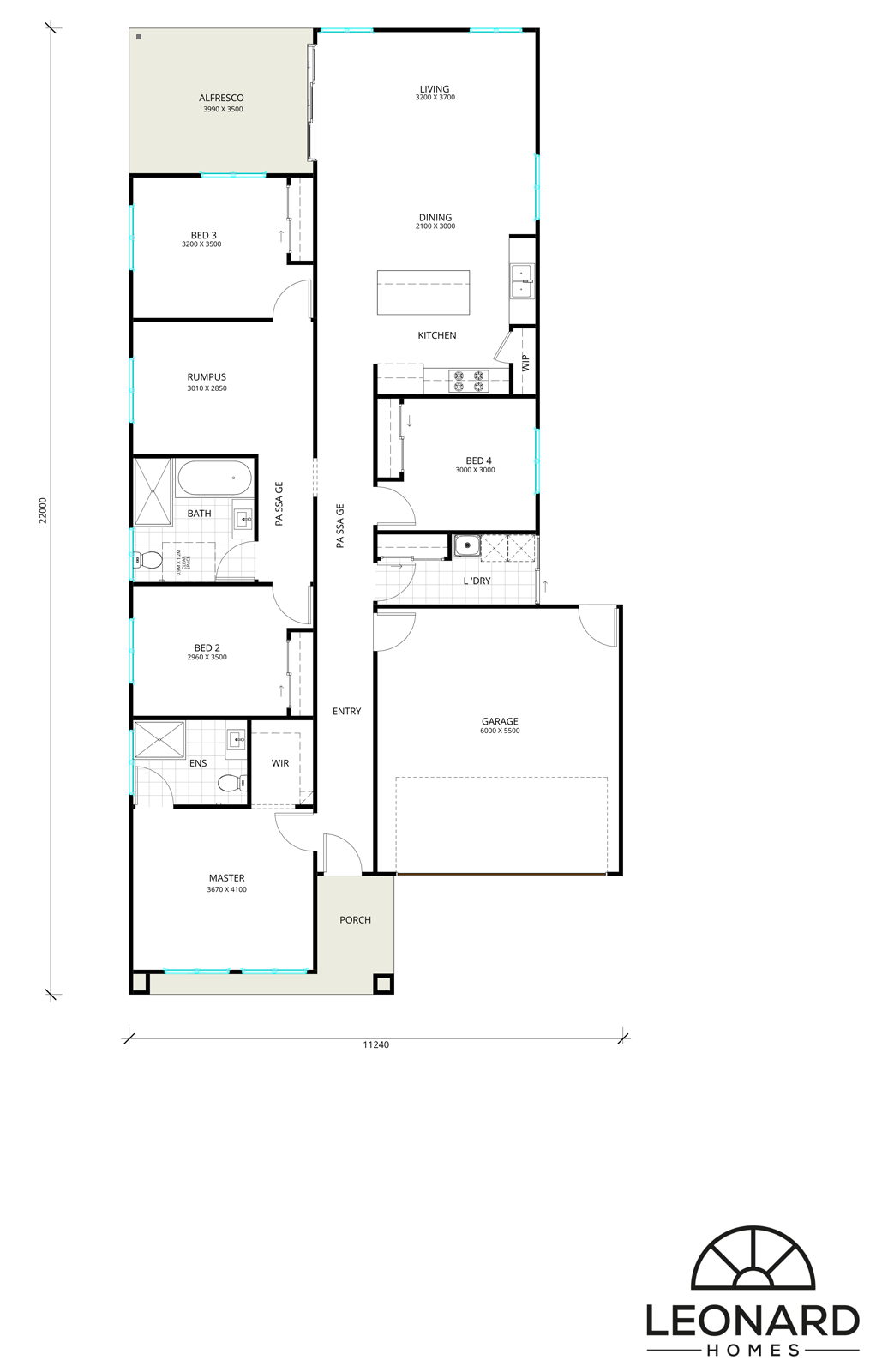
Heathwood 206

The HEATHWOOD 206 has been designed with space and family living in mind. This design includes four-bedroom, separate rumpus/media room, open plan living and dining and double car garage. The kitchen flows seamlessly onto the main living/dining and outdoor alfresco, perfect for entertaining.

Key Features:

  • Design width is 11.24m 
  • Four bedrooms
  • Larger entertaining kitchen with open plan living and dining 
  • Feature Hamptons cladding with stone pillars 

Contact our new home team today for a quote.

More Designs

Heathwood 206

Oxenford 227

Ripley 190

Set your Location

Download your home inclusion now