Lara 155

Lara Range

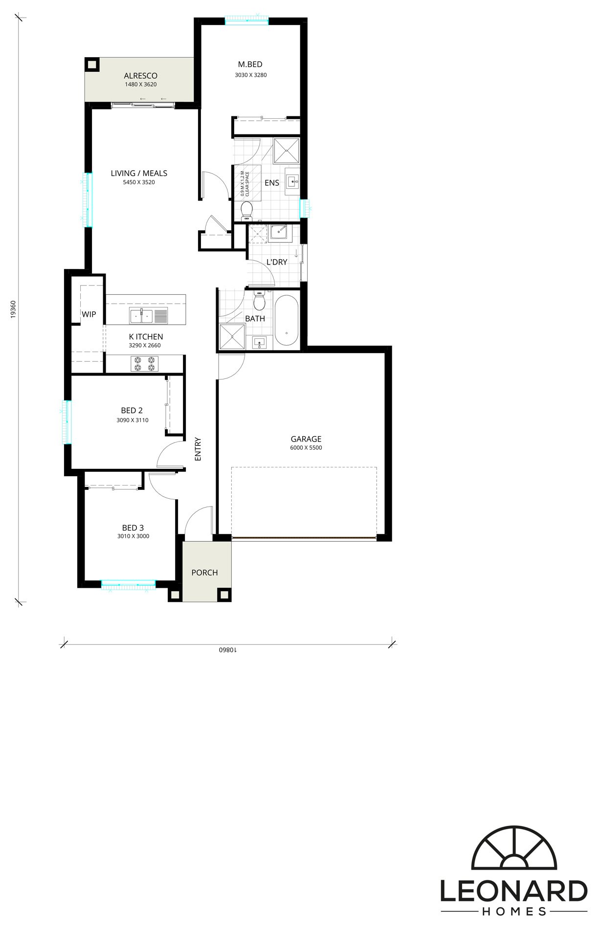
The Lara 155 builds upon the smart design of the Lara 141, offering additional space and a double-car garage for added convenience. Perfect for small families or first-time homeowners, this cleverly designed home maximizes functionality while maintaining a compact footprint. Designed for land 10 meters wide or larger, the Lara 155 provides an affordable yet stylish living solution without compromising on comfort. With well-thought-out spaces and a modern layout, this home is the perfect blend of practicality and contemporary design.

Contact our new home team today for a quote.

More Designs

Heathwood 206

Oxenford 227

Ripley 190

Set your Location

Download your home inclusion now