Montville 372

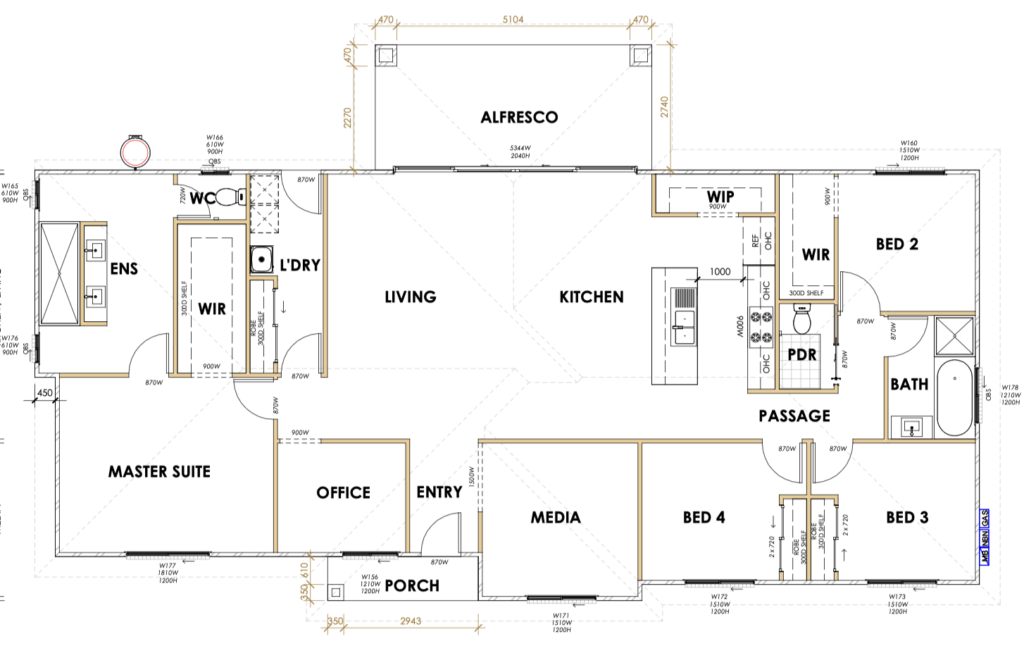
The MONTVILLE 372 is the ultimate expansive acreage home with show stopping Porte Cochere and three bay garage. The raked ceilings through the living area create a great sense of space for family living.

Key Features:

  • Design is great for acreage living
  • Four bedrooms
  • Large open plan kitchen with seamless flow onto the living, dining and alfresco
  • Feature Hamptons cladding with stone pillars
  • Porte Cochere and three bay garage

House Width: 30.84m

House Length: 15.90m

Contact our new home team today for a quote. 

Contact our new home team today for a quote.

More Designs

Oakhurst 200

Rothwell 346

Maleny 303

Set your Location

Download your home inclusion now