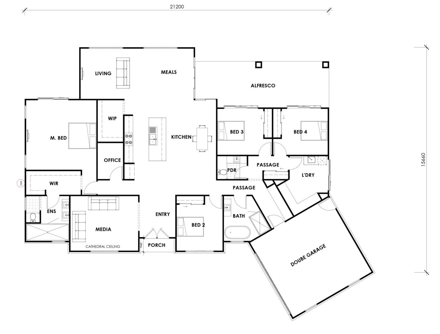
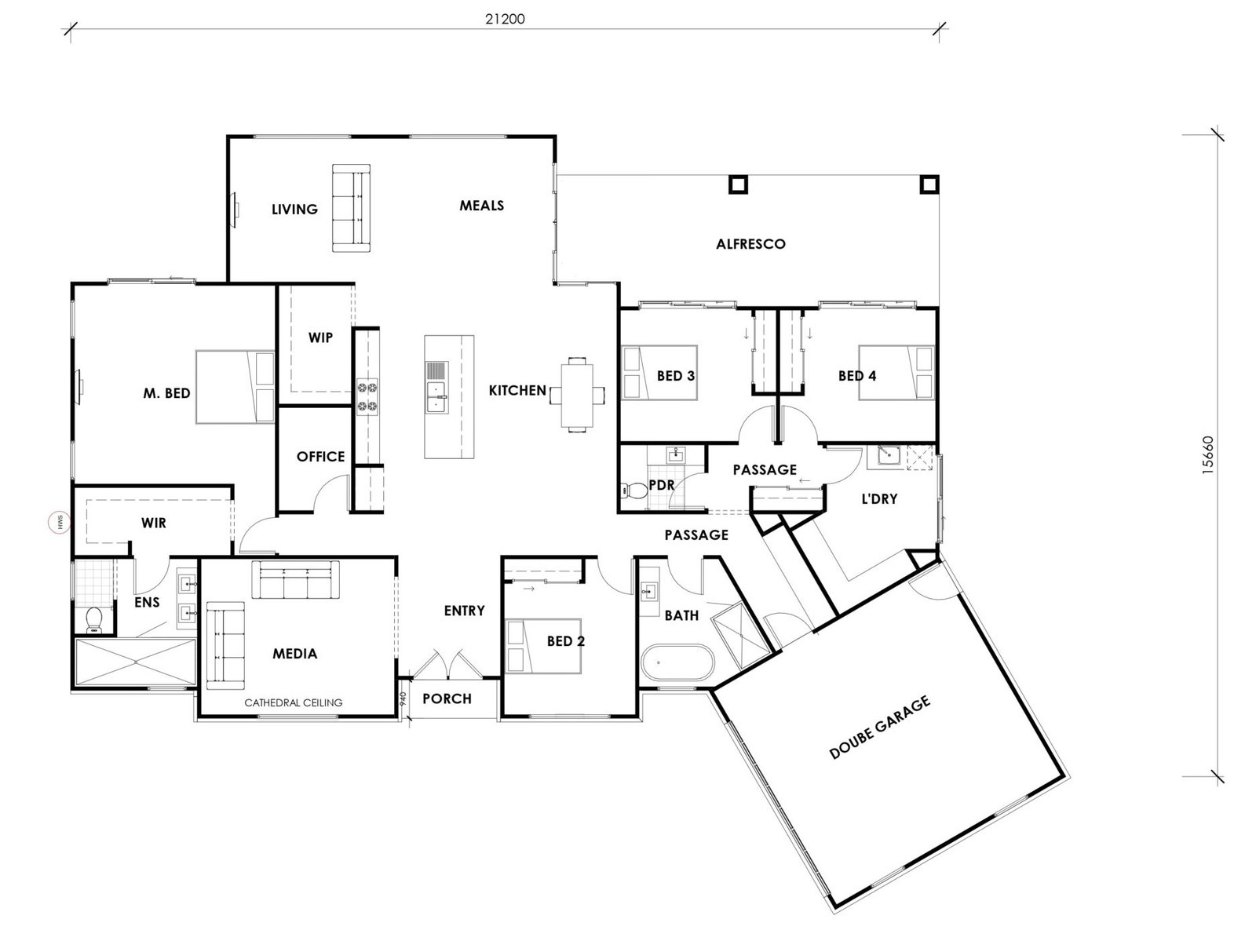
Maleny 303

Contact our new home team today for a quote.

More Designs

Oakhurst 200

Rothwell 346

Maleny 303

Set your Location

Download your home inclusion now