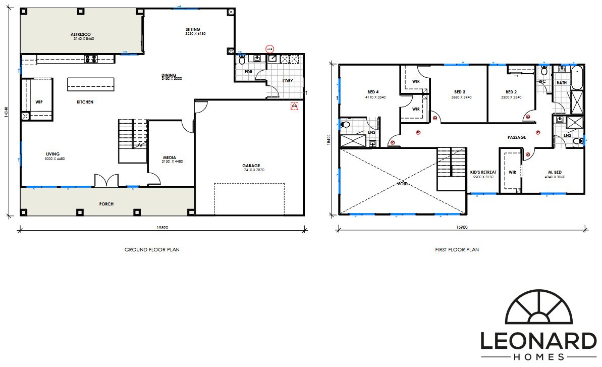
Kingscliff 300
- 4
- 2.5
- 2
- 1
- 2
The Kingscliff 300 is a spacious modern two storey family home designed with family living on the lower level. The upper level includes four spacious bedrooms and media/study. The two-story high void creates grandeur and lets light fill the home.
Key Features:
- Design width is 19.5m, great for large residential or acreage blocks
- Four spacious bedrooms on the upper level
- Separate media room
- Open plan kitchen with large benchtop and walk in pantry